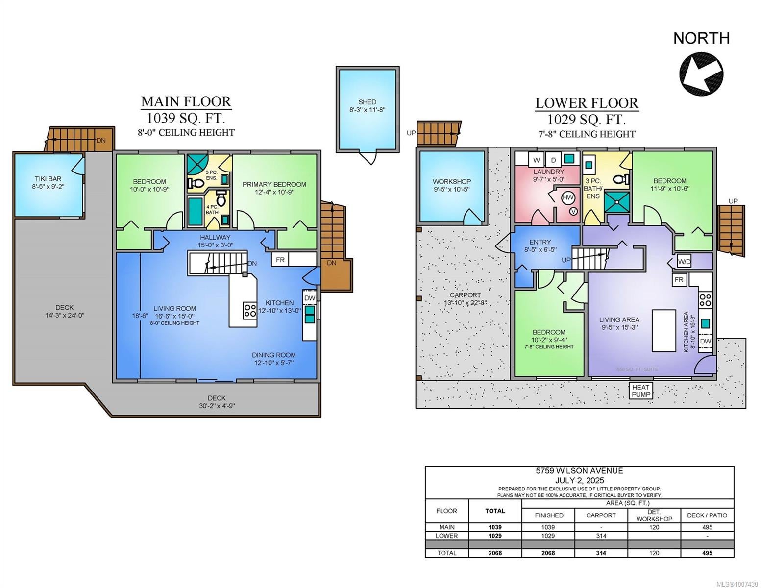
Welcome to this renovated 4 bed, 3 bath home offering 2,068 sq ft of comfortable living space in central Duncan, steps from the current hospital. Originally built in 1976, the main home was completely updated in 2016 with modern finishes and thoughtful upgrades throughout. The main level features a bright, open layout with spacious living and dining areas, and a well-appointed kitchen. Downstairs you'll find a fully self-contained 1 bed, 1 bath suite done in 2023 with a private entrance, its own laundry, and designated parking—perfect for extended family or rental income. Situated in a desirable and convenient location close to schools, shopping, and transit. This move-in-ready property offers flexibility, functionality, and excellent value. Don’t miss out on this opportunity! Contact us or your agent for our in depth information package.
Address
5759 Wilson Ave
List Price
$750,000
Property Type
Residential
Type of Dwelling
Single Family Residence
Transaction Type
Sale
Area
Duncan
Sub-Area
Du West Duncan
Bedrooms
4
Bathrooms
3
Floor Area
2,068 Sq. Ft.
Lot Size
7405 Sq. Ft.
Lot Size (Acres)
0.17 Ac.
Year Built
1975
MLS® Number
1007430
Listing Brokerage
eXp Realty (DU)
Basement Area
Finished, Full
Postal Code
V9L 4S4
Tax Amount
$3,454.00
Tax Year
2025
Features
Baseboard, Built-In Range, Dining Room, Dishwasher, Electric, F/S/W/D, Heat Pump, Microwave, Mixed, Vinyl Frames
Amenities
Balcony/Deck, Central Location, Fencing: Partial, Garden, Quiet Area, Shopping Nearby, Storage Shed






















































